Bouwbedrijf Holwerda - De Lyts Ein 7


Bouwbedrijf Holwerda - De Lyts Ein 7
©: Jorrit Holwerda


In juli 2004 verhuisde bouwbedrijf Holwerda van De Lyts Ein naar 't Oogh. Al zo'n 125 jaar was er een timmerbedrijf op de hoek van De Lyts Ein en De Buorfinne. Sinds oktober 2004 is die plek ingenomen door Jan Mook met zijn SPAR-supermarkt. Hij kwam van De Buorren 11, waar 65 jaar lang een winkel heeft gezeten. Deze plek op De Buorren heeft een veel langere geschiedenis dan De Lyts Ein 7, een geschiedenis die teruggaat tot het ontstaan van ons dorp. Deze verhuizingen van twee middenstanders vormden de aanleiding voor het schrijven van twee essays. De andere keer ging het om De Buorren 11 en nu staat De Lyts Ein 7 op het menu.


Dit huis aan De Lyts Ein 7 met bijgebouw(en) wordt beschreven vanaf de stichting tot aan vandaag de dag. Daarom moeten we nu teruggaan naar ongeveer 1876. De bouw van een nieuwe school op dit terrein ging niet door, deze nieuwbouw was een van de plannen om de toestand van het openbaar onderwijs in ons dorp te verbeteren. 
Anne Ypes Jousma ziet nu kansen om op deze plek een nieuwe herberg met timmerwinkel neer te zetten. Voorheen was hij, sinds 1873, eigenaar van de herberg op Bollingwier (nu familie Roodt, Bollingwier 21). 

Ook daar had hij een timmerwinkel achter de herberg gebouwd en op het aangrenzende terrein nog twee huizen (in 1931 onbewoonbaar verklaard en afgebroken). Toen hij deze herberg verkocht, stelde hij één voorwaarde: “…de tapkast met toebehoren en de winkelborden met winkelartikelen en gereedschap zijn niet bij de verkoop inbegrepen en behoudt de verkoper aan zich..” 

Deze waren uiteraard bedoeld om te worden gebruikt in de nieuwe herberg aan De Lyts Ein. In februari 1878 kocht Jousma voor f 600,- een stuk grond van de kerkvoogden van de voormalige Buurfenne en in maart vroeg hij aan B&W: "Daar ik van plan ben op de zogenaamde Buurfenne een nieuw huis en een doorreed te bouwen, ter uitoefening van een timmermans- en herbergiers affaire, mij autorisatie te verlenen om de bestaande sloot langs de kunstweg naar Bollingawier, naast de Buurfenne, over een lengte van 30 meter te mogen dempen." Hij krijgt toestemming en daarmee wordt een begin gemaakt met het dichtgooien van de sloot richting Trijehuzen. In juni schrijft Jousma in de krant dat de "nieuwgebouwde herberg" op 8 juni geopend zal worden en vlak voor de winter is het geheel klaar en Jousma stelt zich via een advertentie aan het publiek voor:

Uiteraard is het pand in de loop der tijd gerenoveerd, maar het oude interieur is nog duidelijk zichtbaar. Als je van De Lyts Ein de voordeur in ging, “A. Jousma, Vergunning" stond er boven in het raam, dan kwam je in een lange gang met een estriken vloer. Dat waren hele mooie estriken: grijs met roodachtige sterren (zouden ze nog onder de houten vloer zitten??). Achter in de gang, aan de rechterkant, was een wenteltrap die naar boven leidde. Aan de linkerkant bevonden zich de woonkamer en de keuken, met daarachter een gang die helemaal achter het huis langs naar de timmerwinkel ging. Rechts kwam men in de gelagkamer. Over deze tapkamer heeft Anne Jousma, de schrijver (Anne Ypes Jousma was zijn grootvader), eens een gedicht geschreven:


Taepkeamersfinster

O, koe ik jitris foar dat nea forgetten
taepkeamersfinster sitte op sneintomoarn
en sjuch de swarte tsjerkegongers oan,
dy’t nei de preek op Bollingwier tasetten.

As Pake stiek in sneinssigaerke oan
en Beppe hie de sneinske kofje yngetten,
dan digere ik om fierrens, oft ik net in
lokaeltsje riden seach op Dokkum oan...

Nei Dokkum…en ’t soe fole fierder kinne…
nei Ljouwert…en dan withwersanne hinne,
nei fiere stêdden fan de skoallekaert

Fier oan de kimen fan it libbenspaed
blinkt noch dat finster yn de simmersinne:
in oare wrâld-, fan dizze fier fandinne

Vanuit de timmerwinkel kwam men in de doorreed, de plek waar de boeren hun paarden konden vastbinden als ze wat kwamen drinken, of een verkoop of vergadering wilden bijwonen. Er moet ook een stal voor de paarden zijn geweest. Het betreft het deel dat dwars op De Lyts Ein staat en dat in de jaren tachtig nog een doe-het-zelfzaak was (zie tekening en foto).

Jousma is hier niet lang gebleven, althans niet in het begin, want om een mij onbekende reden wilde hij zijn herberg en timmerwinkel in 1880 al weer verkopen "wegens vertrek naar elders". (Noot 1)

         
Hij kan blijkbaar niet genoeg beuren naar zijn zin (het gevraagde bedrag van f 3889,- is een stuk minder dan het bedrag dat hij bij verkoop van de herberg op Bollingwier zou hebben gekregen: f 5000,-) want in de komende jaren gaat hij over tot het verhuren van zijn zaak, terwijl hij zelf in Groningen belandt. De eerste huurder was Klaas Tiedes Bijlsma, maar hij bleef niet lang in het pand en ging in 1883 failliet. De zaak wordt opnieuw verhuurd en nu wordt Sake Veenstra voor drie jaar de nieuwe kastelein en timmerbaas. Maar ook Veenstra kan mogelijk de huur (van f 125,- per jaar) niet meer betalen, want hij stopt ermee in 1886. Het zijn de slechte jaren tachtig van de 19e eeuw, het valt niet mee om een stuk brood te verdienen. Het is niet voor niets dat veel mensen in die jaren naar Amerika gaan om daar een nieuw leven op te bouwen. Anne Jousma geeft het blijkbaar op want hij komt terug van Groningen en wordt zelf weer gebruiker van herberg en timmerwinkel.

De familie Jousma bleef tot 1954 eigenaar/gebruiker van het bedrijf. Volgens de verhalen van Anne Jousma in zijn boek "Dêr’t de woartels lizze", was pake Anne Ypes Jousma de kastelein. De zonen Jan en Wiltsje waren de timmermannen en Ype de tekenaar. Ype mocht vanwege hartproblemen geen zwaar werk doen, hij kon ontzettend mooie bouwkundige tekeningen maken (ik heb daar al een aantal mooie voorbeelden van gezien) en deed verder wat licht werk in de werkplaats. Ype en Wiltsje bleven lange tijd vrijgezel, pas in 1920 trouwde Wiltsje, met zijn nichtje Dirkje Minnema.


De herberg bleef bestaan tot ongeveer 1930, toen oude Jousma op 86-jarige leeftijd overleed. Er was al niet veel klandizie meer, een enkeling dronk nog eens een glaasje, een ander haalde nog een fles vol, dat was het wel zo'n beetje. Op 1 januari 1920 had de oude Jousma zich al teruggetrokken uit de timmerzaak en deed het bedrijf over aan zijn zonen.
Ype A. Jousma woonde destijds in de zaak, Jan A. Jousma woonde op Griene Wei 1 en Wiltsje woonde op De Lyts Ein 11 (nu Cor Dijkstra). Hij kocht dat huis in 1927 van de weduwe van Ype Grijpstra voor f 2012,-. Ype overleed in 1941 en vervolgens kwam Wiltsje terug in de zaak wonen.
De oude herberg en timmerzaak werd toen in twee delen bewoond:
Oostkant:                        Westkant:
1931    Jaap Hartmans            1930    Ype Annes Jousma
1938    23 maaie Folkert Theunis Faber    1942    Wiltje Annes Jousma
1939    Lieuwe Meints Jousma        1944    Roelof Landman
1942    Wiltje Annes Jousma            1945    Wiltje Annes Jousma
1945                        1947    Jan Klazes Minnema
1947    Wiltje Annes Jousma            1951    Tjerk Hendriks Mulder
1952    Wed. W.A. Jousma            1952    Frans Dirks Bosch
1954    Johannes Murks Kingma        1954    J.M. Kingma
1955    Harm Tjeerds Holwerda        1955    H. Holwerda

Wiltsje Jousma woonde en werkte in de zaak tot aan zijn dood in 1952, toen hij 74 jaar oud was (dit laatste is misschien niet helemaal waar, want er werd niet veel meer in de werkplaats gedaan). Weduwe Dirkje Jousma-Minnema bleef hier nog twee jaar en droeg de zaak daarna over aan buurman Johannes Murks Kingma. Daarmee kwam ook een einde aan het gescheiden gezinsleven, aangezien de familie Kingma alleen in dit huis woonde.
Johannes Kingma woonde jarenlang (sinds 1937) een huis verderop aan De Lyts Ein, op nr. 9, waar nu Bauke Postmus woont. Hij had het gekocht van Theunis Aukes Faber en gebruikte een schuur, die stond op de plek waar nu de oprit naar het terrein achter de huizen is, als werkplaats. Toen Wiltsje overleed, wisselden hij en Dirkje Jousma van huis. (De comparanten verklaarden dat in verband met deze ruil geen van beide partijen enige schadevergoeding verschuldigd is, aldus de koopakte!); zo had hij meer ruimte om zijn bedrijf te runnen.


Het "Kingmantsje", zoals hij genoemd werd, kreeg echter reumatiek en moest zijn bedrijf verkopen (hij vertrok naar een fabriek voor gewapend beton in Kampen), ook al ‘had dat heel wat voeten in aarde’. Hij had het al meerdere keren in de krant gehad, want hij wilde het per see aan een hervormde timmerman verkopen. Dat was toen nog zo, mensen die hervormd waren gingen meestal naar een hervormde timmerman, en omgekeerd gingen de gereformeerden natuurlijk naar een gereformeerde timmerman. 
Toen kwam hij naar Harm Holwerda en zei: "Als ik het dan toch aan een gereformeerde moet verkopen, dan moet jij het maar hebben.” Holwerda en zijn buurman Boate Kooistra (zij woonden aan de Langgrousterwei op nummer 35 en 37) verhuisden naar De Lyts Ein, Kooistra naar nummer 11 en Holwerda naar nummer 7 en binnen een week was het allemaal rond.
Toen het gezin Holwerda naar De Lyts Ein kwam, ze ruilden met Kingma, zag het er niet zo goed uit: Kingma zat midden in een verbouwing en er was maar één kamer af en twee kamers boven, verder was alles bijna kaal, de gang achter het hele huis was ook al weg. 
Zie de tekening. De eerste tekening toont de voorgevel toen het huis nog als café-timmerwerkplaats in gebruik was, met rechts de doorreed.

Bestaande voorgevel

Na verbouw

Het is opvallend hoe hoog het woonhuis is, ten opzichte van de Werkplaats (1954)

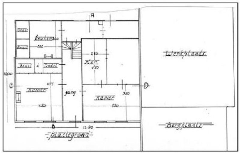
Hier ziet u de situatie na de verbouw. Het grootste verschil zit in de verhoogde zijmuren om ruimte te krijgen op de zolder en de aangepaste ramen: die in de tapkamer zijn verplaatst en hebben geen roedes en er is een extra raam (van het toilet) toegevoegd naast de voordeur. Ook binnen is alles veranderd, wat u kunt zien op de oude plattegrond. 

 


Harm Holwerda was de zoon van slager Tseard Holwerda, die vroeger in Peazens woonde, maar later een slagerij aan het begin van de Ropsterwei kreeg (nu woont mevrouw Postmus daar, in een nieuwer huis). Harm werd timmerman bij Simon Zijlstra (had een timmerwerkplaats in de oude Openbare School en ging na 1950 naar Eanjum) en legde de eerste steen van de eerste huizen die aan de Buorfinne werden gebouwd (waar Wytse en Janny Dijkstra later woonden), dat was in 1947. Direct daarna moest hij naar Indië, vanwaar hij in 1950 terugkeerde. Vervolgens kwam hij als knecht terecht bij Douwe Visser in Peazens, zij hadden immers nog enige banden met Peazens: vader Tseard Holwerda was daar slachter-timmerman. In de winter slachtte hij en in de zomer was hij timmerman-metselaar. Hij moet het station in Eanjum nog hebben opgemetseld, zei hij altijd. Broer Brand Holwerda was ook slachter geweest in Peazens. Dat werken in Peazens duurde totdat Kingma bij hem kwam.
Ruurd Braaksma was knecht bij Johannes Kingma en werd overgenomen door Harm Holwerda. Zo begonnen ze samen deze nieuwe zaak, dat is dit jaar (2005) 50 jaar geleden. In eerste instantie bestonden deze werkzaamheden vooral uit ‘kleine karweitjes’, zoals een nieuwe vloer, deur of kozijnen, hier een nieuwe kast met planken en daar bij de grote schoonmaak een nieuwe dorpel. Als de koeien in het voorjaar naar buiten gingen, gaf dat meestal ook voor de timmerman werk. 
De eerste grote klus was de sloop en volledige herbouw van de zaak van Siemen Heeringa, bakker aan de Foeke Sjoerdsstrjitte, dat was in 1956. De bouw van zo'n huis betekende in die tijd heel wat, omdat ze maar met z'n tweeën waren, hadden ze bijna een half jaar werk. Alles moest met de hand gebeuren, er waren vrijwel geen machines. De gereedschappen en materialen kwamen in een karretje (twee wielen en een handvat) achter de fiets en daar ging het heen. Zo zijn in die beginperiode ook de huizen van Jabik Meinsma (nu Tsjally Postmus op De Terp), De Buorren 30 en het huis De Lyts Ein 1 gebouwd, terwijl het huis Griene Wei 4 volledig werd verbouwd.

Deze eerste werkzaamheden vonden vooral in het dorp zelf plaats, pas in 1958 kwam er een groot karwei bij Jensma in Hantum, toen werd ook de eerste auto aangeschaft. In eigen dorp kon de kar nog altijd dienst doen, al werd daar toen meestal een bromfiets, het was een Flandria, voor gebruikt!

>>>>>>>>Foto H.Tj. Holwerda 1958  

Het grotere werk kwam in latere jaren, vooral van Woningstichting Oost-Dongeradeel. Zo heeft Holwerda in heel wat dorpen bejaardenwoningen gebouwd, ook in ons dorp: eerst werd de eerste kleuterschool (uit 1959) afgebroken en op die plek kwamen de eerste drie bejaardenwoningen van de Doktersfiif, dat was in 1973/4. Dit soort huizen, bijvoorbeeld in Nijewier en Eanjum, wordt nu gesloopt of moeten compleet gerenoveerd worden.
In 1974 werden ook enkele "bungalows" gebouwd, aan de westkant van de Griene Wei en in Mitselwier. Het was de tijd dat zoon Tseard van de MTS kwam en zijn plek in het bedrijf vond. Een jaar later werden de woningen aan de overkant van de Griene Wei gebouwd voor de Woningstichting en daarna kwam zo langzaamaan de Nijbuorren aan beurt.
In Peazens was altijd veel werk voor de Holwerda's, eerst voor de Peazemers zelf en later voor de Duitsers die de vissershuisjes opkochten. Het moet te maken hebben gehad met de band die de Holwerda's met dit dorp hadden, zoals hierboven uitgelegd. Het is gebeurd dat Gé en Meint een heel jaar lang werk hadden in Peazens en dat alleen maar voor kleine klusjes!
Dit was de tijd dat er hoe langer hoe meer mensen in het bedrijf kwamen. Na Ruurd Braaksma kwam Gé Riemersma, toen Meint Meinema en Mense van der Wagen (die er ook al bijna 40 jaar werkt) tot er zo'n 15 tot 20 man werk vonden bij bouwbedrijf Holwerda! 
Er was een eigen metselaarsploeg, er waren verschillende uitvoerders en daarnaast werd er ook veel werk uitbesteed, zoals stukadoorswerk. Er was werk genoeg en zelfs grotere klussen werden steeds vaker aangenomen. De aardappelloodsen van Schroor in Wierum waren de eerste in 1979 en verder was er altijd veel werk voor de Friese Mij op Ropta (nu HZPC research). Het bedrijf van Holwerda is daar wel eens een jaar lang aan het werk geweest.
Het eigen bedrijf aan De Lyts Ein werd eigenlijk te klein en werd daarom in 1980 geheel verbouwd. Over de oude schuur heen werd een grote loods van 6 meter hoog gebouwd (het werk moest wel doorgaan!). Vervolgens werd alles binnenin afgebroken en werd er een betonnen vloeren gelegd, waarop een aantal modernere machines werden geplaatst. Juist in die tijd liep de bouw sterk terug en Harm Holwerda zei eens tegen Tseard: "Waar zijn we met deze loods eigenlijk aan begonnen!" Er moesten een aantal werklui worden ontslagen, er bleven er nog zo'n acht over. Er kwam nog een opleving toen bouwbedrijf De Wilde ermee stopte en Holwerda een paar mannen overnam, maar er zijn nooit weer zoveel mannen bij dit bedrijf in dienst geweest als toen, een stuk of vijf of zes, dat was het wel zo'n beetje.
In die drukke periode had het bedrijf een tijdje een eigen boekhouder in de persoon van Ljibbe Jaap Bergema. Hij had een eigen, heel klein 'kantoortje' aan de achterkant van het huis, bijna in de schuur ingebouwd. Ljibbe Jaap werkte via Oostergo en had een heel kaartsysteem opgezet met vakjes voor "crediteuren en debiteuren", de facturen schreef hij nog met de hand. Harm en later Tseard deden dat ook lange tijd. Tegenwoordig gaat alles natuurlijk via de computer en komen de rekeningen ook iets sneller bij de klanten aan. Voorheen kwam de rekening pas nadat de klus klaar was.
Bangma en Raadsma uit Dokkum waren de vaste leveranciers van hout. Steen, zand, portland en dergelijke kwam van Vermeulen, later NVB-Vermeulen genoemd. Dat bedrijf stond op de plaats waar nu de Action in Dokkum is. Alles werd per schip aangevoerd en vervolgens naar de verschillende timmerlui in de omgeving gebracht. Steen werd meestal per vrachtwagen aan de bouwput afgeleverd, de mannen moesten vervolgens de vrachtwagen met de hand legen. Alles op de schouders, soms in de steenkruiwagen, en vervolgens in een blok opslaan. Als zo'n vrachtwagen pas rond vier uur kwam, precies op het moment dat de mannen wilden vertrekken, dan hadden ze de pest in want dan hadden ze nog wel even werk!
Alles van metaal kwam van Raadsma IJzerhandel. Dat bedrijf zat toen nog in een prachtig oud pand aan Breedstraat, met grote pilaren ervoor.
Het meeste materiaal werd direct naar de bouwplaats gebracht, thuis was er niet veel ruimte om het op te slaan. Het schuurtje, later de loods, was al snel vol; Natuurlijk moest er ook ruimte blijven om te kunnen werken, zoals het maken van kozijnen, het maken van trappen en het maken van deuren. Dergelijke werkzaamheden werden toen door de timmerman zelf uitgevoerd en niet uitbesteed, want zo had men ook weer werk. Ook werden er polsstokken en sleeën gemaakt en in het begin maakte het bedrijf ook karren / wagens.
Het maken van doodskisten was aanvankelijk ook een taak van de timmerman, al maakte Harm Holwerda ze niet meer zelf. Hij kreeg er een hekel aan, want dan moest hij ook nog naar al die begrafenissen. Toen Siemen Jongeling bode werd, vroeg hij of die de leveranties van kisten op zich wilde nemen. Die was wel geïnteresseerd, want daar werd wel aan verdiend. 
Holwerda heeft wel vreemde dingen meegemaakt en het verhaal van "De Boer", zoals Bearn Heeringa zichzelf noemde, is vaak verteld. Heeringa nam Holwerda mee naar het kerkhof om hem precies te vertellen hoe hij begraven wilde worden in de grafkelder van de familie. Ze lagen op de knieën op het kerkhof en Heeringa legde aan Holwerda uit: "Als De Boer er niet meer is, dan moet je dat zus en zo doen..."

Om ruimte te winnen werd er aan de westkant van de schuur een dichte loods met een plat dak gebouwd. Daar stond de auto in, een Chrysler, maar alles was net breed genoeg om erin te kunnen rijden. Johannes Holtewes merkte dit op omdat hij, in plaats van de auto, de hele deur eruit reed.
Achter het huis was ook niet veel ruimte, dus werd er geleidelijk meer grond bij gekocht toen de mogelijkheid zich voordeed. Eerst werd er een stuk land gekocht van Dirkje Jousma-Minnema, later wilde Elzinga wel een stukje van zijn grasland missen. Toen Elzinga overleed, werd er nog wat gekocht en uiteindelijk werd het kleine, schuine puntje grond dat er eerst was, uitgebreid tot een groot opslagterrein waar loodsen met materiaal, keten, steen, zand en alles wat erbij hoorde een plek vonden. Om daar te komen werd de oude werkplaats van Johannes Kingma opgeruimd.

Tseard en Hanneke Holwerda woonden toen in De Lyts Ein 9 (in die tijd ook helemaal opgeknapt) en daar stond dat timmerhok nog altijd naast. Nadat deze was opgeruimd, kwam er de oprit naar achteren naar het opslagterrein, met daarvoor een netjes hek dat op slot kon.
Tseard en Hanneke kwamen in 1985 in De Lyts Ein 7 wonen, toen Harm en Renske Holwerda naar de Mûnewei verhuisden.

Tseard heeft het hele pand geleidelijk aan van binnen en van buiten opgeknapt, alleen de keuken is niet veel veranderd. In 2000 werd er nog een kantoor aangebouwd, want er was verder te weinig kantoorruimte voor de computers, printers, etc. Die namen wel veel ruimte in beslag, en zo konden klanten beter worden ontvangen. Er waren toen al concrete plannen om op het nog te realiseren industrieterrein 't Oogh een geheel nieuw bedrijf te vestigen, maar Tseard vreesde dat dit nog wel even zou duren.

Dat bleek terecht, want hij kon er nog vier jaar van profiteren voordat het nieuwe bedrijfspand op 't Oogh in 2004 werd opgeleverd en in juni van dat jaar in gebruik werd genomen. Na ruim 125 jaar was er op De Lyts Ein 7 geen timmerbedrijf meer gevestigd.

Jan en Sjoukje Mook werden de nieuwe eigenaren en zij bouwen alles om tot een prachtige supermarkt: een SPAR. De zaak is al in oktober 2005 gestart en is het volgen waard, voor een dorp als Nijtsjerk is het iets bijzonders.
En wat dacht u van de grote opslagruimte achter De Lyts Ein 7 en 9? Er zijn liefhebbers genoeg die een stuk land willen kopen. Momenteel worden alle bouwmaterialen er weggehaald, de eerste delen zijn al genivelleerd en de kranen draaien.
Als ze dan toch aan het graven zijn, vinden ze mogelijk nog het gouden oorijzer dat begraven moet zijn geweest op de plek waar vroeger de herberg en de timmerzaak stonden. Er werd altijd gezegd dat Dirkje Jousma-Minnema dat gouden oorijzer tijdens de oorlog heeft begraven, zodat hij niet in handen zou komen van de Duitsers. De Holwerda's zochten overal, ze leegden een regenwatertank, maar vonden niets.

Er is één ding waar Jan Mook zich niet meer mee bezig hoeft te houden: het afleveren van een emmer water bij een eerdere eigenaar. In de koopaktes van 1954 en 1955 (Jousma-Kingma en Kingma-Holwerda) werd gesteld: “De comparante sub 2, heeft het levenslange recht om zonder enige schadevergoeding verschuldigd te zijn, hemelwater op te vangen of te doen opvangen uit de op het genoemde perceel aanwezige hemelwatertank tot een maximum van twintig liter per dag en om voor dat doel het laatstgenoemde perceel te betreden of te laten betreden.”
Toen de Holwerda's hier kwamen, moest Renskje elke dag die emmer water naar Dirkje brengen, een heel gedoe natuurlijk. Ze zei dat ze geen kraanwater kon verdragen en dat ze het daarom in de koopakte had laten opnemen. Op een gegeven moment kwam er alleen maar zwart water uit de pomp en zat Renskje met “de handen in het haar”. Ze vroeg zich af of er zoveel vuil in de regenwaterbak zat en hoe moest het dan met elke dag een emmer bakwater brengen? Ze had het snel bedacht, bracht Dirkje een emmer kraanwater en zei verder niets. De volgende dag kwam ze terug met een emmer kraanwater en zei: "Smaakte het water gisteren wat, Dirkje?" Die zei dat het net zo goed was als alle andere dagen en toen vertelde Renskje dat het een emmer met kraanwater was geweest omdat de waterbak zwart water gaf. “Dan kan je voortaan wel kraanwater gebruiken, het maakt immers toch geen verschil”. En zo raakte Renskje van haar dagelijkse verplichting af.


Noot 1:
In 1880 probeerde Anne Ypes Jousma zijn huis met timmerwinkel te verkopen aan de gemeente, die de zaak voor f 4100,- kon overnemen. Hij wist dat de gemeente op zoek was naar een plek om een nieuwe school en onderwijzerswoning te kopen. B&W praten er twee keer over, want "in deze tijd waarin de huizenprijzen laag zijn", is het natuurlijk een mooie kans om een goede deal te sluiten. Het gaat niet door, mogelijk had burgemeester Abe Sybenga al in gedachten om zijn eigen boerderij aan de gemeente te verkopen als onderwijzerswoning (zie De Buorren 11).

Foto
De Lyts Ein vóór 1911. Links, achter de huizenrij, zijn de twee deuren van de doorreed te zien. Voor het huis van Joh. Kingma lijkt een enorme slijpsteen te staan. 


Foto: Het gehele complex van bovenaf gezien in 2001.

Foto:  Toen er nog volop actie was in de timmerwinkel. 
Links Henk Heeringa en rechts Willem Sonnema (van Eanjum)


September 2005

© Tekst: Reinder Tolsma, vertaald Annie Bremer © Foto voorblad: Jorrit Holwerda
Lês mear

Relatearre ynformaasje


OnderwerpenFoto’sDokuminten